Egy eltűnt régi birtok nyomában

A Helyismeret wikiből
Írta: Schildmayer Ferenc


Az eddigiektől eltérően nem egy álló régi épület történetét ismerheti meg a tisztelt olvasó, hanem olyanét amelyik ma már nem létezik. Nem egyedi eset Almádiban, hogy egy épület nyomtalanul eltűnik, sajnos elég sok van, illetve volt ilyen. Teljes egészében eredeti állapotában fennmaradt épület ma már alig található. A forrást, mint eddig is minden esetben, az 1858. évi kataszteri felmérés adatai jelentik azzal a bővítéssel, hogy megmaradt családi iratok adataival egészíthetők ki.

Az 1858 évi adatok a következők:

Tulajdonos: Tóth István varga, veszprémi lakos

3957  helyrajzi szám   rét 88 négyszögöl
3958 " ház (88 számú) 45 "
3959 " szőlő gyümölcsfákkal   1585 "
3960 " rét gyümölcsfákkal 131 "
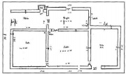
Az épület alaprajzi vázlata 1910 körül

A birtok nagysága összesen 1 katasztrális hold 249 négyszögöl. Helyileg a mai Baross Gábor út és Móra Ferenc utca által határolt saroktelekről van szó.

Az 1859-ben felfektetett szentkirályszabadjai telekkönyv adatai pedig így szólnak:

1504 helyrajzi szám, Szőlő pincével a berényi dűlőben, 1 k.-hold 171 n.-öl

Tulajdonosa: Tóth Istvánné szül. Tóth Terézia veszprémi lakos.

1867. április 26-án 480 osztrák értékű forintért, Lang János és neje Schmidt Anna veszprémi lakosok vették meg a birtokot.

1869. december 27-én örökösödés folytán a tulajdonosok 2/4 részben Lang János, 1/4-1/4 részben pedig Lang Mária és Lang Anna.

1881. szeptember 24-én Lang János 2/4 része Jánosi Sándorné, született Lang Anna tulajdon lett, 1/4 rész változatlanul Lang Máriáé maradt.

1881. október 6-án a teljes birtok Dr. Jánosi Sándorné szül. Lang Anna tulajdonába került.

Az 1882. augusztus 27-én felfektetett önálló Almádi telekkönyvben a következő adatok találhatók:

189 helyrajzi szám, Szőlő pincével a berényi dűlőben, 1 k.-hold 171 n.-öl, tulajdonosa Dr. Jánosi Sándorné szül. Lang Anna.

Az 1923 évi „Almádi birtokok kataszteri birtokíveinek összeírásá”-ban a következők találhatók: özv. Jánosi Sándorné sz. Lang Anna, házszám 21, kert 933 n.-öl, szőlő 889 n.-öl, ház 30 n.-öl, összesen 1 k.-hold 171 n.-öl.

1934 évben tett telekkönyvi bejegyzés szerint Dr. Jánosi József örökölte az 1 k.-hold 312 n.-öl nagyságú birtokot. A területi növekedés telekkönyvi kiigazítás eredménye.

1951 évi telekkönyvi adat szerint az örökösök Jánosi Mária, Jánosi András, Jánosi Aloizia és Jánosi Sándor. Végül az 1960-as években két lépésben kisajátításra került az egész birtok.

A telekkönyvi adatokon túlmenően jelen esetben egyéb tényeket is megismerhetünk a családi iratokról.

1. 1870 körül készült 49 x 28,5 cm méretű, ismeretlen festő által festett olajkép, amelyik az épületet bővítés előtti állapotban ábrázolja, a mai Baross Gábor út felöli nézetben.

2. Az épületről készült vázlatos, feljegyzésekkel tarkított alaprajz, amit a család valamelyik tagja készített az 1910-es években. E szerint az épület két szakaszban bővítve lett. A középső rész volt a legrégebbi (ezt láthatjuk az említett olajképen), amelyik a feljegyzésekből következően 1830 körül épülhetett. Az első bővítés keleti irányban, egy szoba hozzáépítésével történt 1886-ban. Ekkor már a Jánosi család volt a birtokos. A következő, nyugati irányú bővítéssel érte el az épület a végleges nagyságát, amelyet a mellékelt 1910-es években készült fénykép tanúsít. A kép a mai Baross Gábor út felől ábrázolja az épületet. Ilyen értelemben a keleti oldal a jobb oldal, a nyugati pedig a bal.

Fentiekből látható, hogy a múlt században és még e század elején is miként bővültek az almádi szőlőkben álló épületek. Jelen esetben az alapépület a következő helyiségekből állt. Présház nyugat felőli bejárattal, ebből balra nyílott egy 6 méteres boltozatos pince, jobbra pedig a szoba. Kémény volt rajta, így téli-nyári használatra is alkalmas volt. Ennél az épületnél is valószínűsíthető, hogy a legkorábbi szakaszban, amelyik a XVII. század is lehet, csupán egy földdel takart boltozatos borospince állt a szőlőben, mint ez a tény számos hasonló korú épületnél is igazolhatóan előfordult.

Az egykori birtok helyén ma többszintes lakóépületek állnak, talán érdekes lehet a mai tulajdonosok számára a vázlatos birtoklástörténeti áttekintés.

Forrás

Új Almádi Újság[1] 1999. (11. évf.) 6. sz. 2. p.

Külső hivatkozás

  1. Új Almádi Újság honlapja